Oktober 2014
Ein erfolgloses Projekt wird Grundlage für den "Dorftreff"

Im Oktober 2014 erhielt der Interessen-Verein ganz überraschend eine Einladung zu einem Workshop der Stadt Ibbenbüren zum Thema LEADER-Förderung. Es ging darum, die Möglichkeiten für LEADER-Projekte in der Stadt Ibbenbüren auszuloten, mit denen sich die Lokale Aktionsgruppe (LAG) -siehe Kasten- für eine LEADER-Förderung in der neuen Förderperiode von 2014 – 2020 bewerben könnte.

Was ist LEADER?
LEADER ist ein Förderprogramm der Europäischen Union zur Entwicklung des ländlichen Raumes. -mehr-
Ein wichtiges Thema bei diesem Workshop war die Verbesserung der Nahversorgung in kleinen Ortsteilen. Neben Dörenthe wurde auch Uffeln als geeignet für ein solches Projekt definiert.
Unser Interesse war geweckt. Bei überschlägiger Betrachtung war tatsächlich ein solcher Bedarf in Uffeln vorhanden. Gab es doch weder einen Lebensmittelladen noch sonstiges örtliches Gewerbe in Uffeln.
In weiteren Gesprächen wurde die Idee verdichtet und der Interessen-Verein wurde auch von Vertretern der Stadt und der LAG ermuntert. Da im Mai 2015 Bewerbungsschluss für die LAG Tecklenburger Land war, musste mit Hochdruck ein entsprechendes Konzept erstellt werden, das sowohl die inhaltlichen und räumlichen Voraussetzungen als auch die Finanzierung darstellte. Eine Mammutaufgabe.
So wurden Ideen entwickelt, was ein solches Nahversorgungszentrum alles leisten sollte. Gleichzeitig begann die Suche nach Räumlichkeiten. In einem ersten Ansatz wurde der ehemalige Lebensmittelladen der Familie Horstmann als geeignet angesehen. Mit Einverständnis der Familie Horstmann erstellte Architekt Alfons Helmer erste Pläne und kalkulierte die Kosten. Gespräche mit der Kreissparkasse und der Volksbank Tecklenburger Land (heute VR-Bank Kreis Steinfurt) zur Co-Finanzierung wurden erfolgreich geführt. Parallel dazu wurde das erste Rohkonzept entwickelt, immer in Rücksprache mit der LAG Tecklenburger Land. So wurde die Projektskizze rechtzeitig fertig und der LAG Tecklenburger Land vorgelegt.
Das Dorf-Service-Center (kurz DoSe) sollte danach eine Vielzahl von Funktionen erfüllen. Das Konzept kam so gut an, dass es als Leitprojekt in die Bewerbung der LAG Tecklenburger Land für die LEADER-Förderung 2014 – 2020 aufgenommen wurde (siehe nebenstehende Abbildung).
Im Mai 2015 befragte der Interessen-Verein die Uffelner mit einem selbstentwickelten Fragebogen zu ihren Wünschen und Vorstellungen im Zusammenhang mit dem LEADER-Projekt. Bis zu einer endgültigen Bewerbung im Jahr 2016 war noch genügend Zeit, um das Konzept entsprechend den Wünschen der Uffelner nachzubessern.

Die Bürgerbefragung
Die Befragung der Uffelner zum LEADER-Projekt brachte überraschende Ergebnisse. -mehr-
Das Ergebnis der Bürgerbefragung, an der 122 von 274 Haushalten teilnahmen, bot eine Überraschung. Offensichtlich war den Uffelnern das Dorf-Service-Center mit seinen Angeboten nicht so wichtig, wie der Interessen-Verein es eingeschätzt hatte.
Der Vorstand des IVU befasste sich mit dem Ergebnis und zog seine Schlüsse daraus. Obwohl, anders als erwartet, nur eher durchschnittliche Werte für die Wichtigkeit des Dorf-Service-Centers erreicht wurden, sollte das Projekt nicht aufgegeben werden. Es wurde allerdings beschlossen, es zu modifizieren, um Kosten und Aufwand zu reduzieren. Ein wesentlicher Beschluss war, das Projekt nur zu realisieren, wenn dies im Pfarrheim möglich wäre. Die die kostenaufwendige Einrichtung des Dorf-Service-Centers im ehemaligen Lebensmittelladen Horstmann erschien dem Vorstand vor dem Hintergrund des reduzierten Interesses der Uffelner nicht vertretbar. Im Pfarrheim war ein Teil der Infrastuktur bereits vorhanden. Außerdem würde so auf jeden Fall eine Konkurrenz zwischen zwei Einrichtungen vermieden. Im Gegenteil, wahrscheinlich könnten sogar Synergieeffekte genutzt werden.
Weiterhin wurde beschlossen, zunächst nur die Module "Treffpunkt" und "Café" einzurichten. Alle weiteren Module sollten zeitgerecht nach dem sich entwickelnden Bedarf ausgebaut werden.
Im Juli 2015 wurden die ersten Gespräche mit der Pfarrgemeinde geführt. Deren Vorbedingung war, dass alle Gruppen, die bislang das Pfarrheim genutzt hatten, dort auch weiterarbeiten könnten. Dazu gab es Gespräche mit allen Gruppen, in denen der IVU sein Raumkonzept vorstellte.
Alle Bedenken konnten ausgeräumt werden. Im Wesentlichen ging es um verfügbaren Raum und Abstellmöglichkeiten für die Schränke mit den Utensilien für die Gruppenarbeit. Letztlich stimmten alle Gruppen der Veränderung zu. In einem war man sich einig: Die Räume werden wechselseitig bei Bedarf der jeweiligen Gruppe zur Verfügung gestellt. Damit war eine wichtige Voraussetzung geschaffen.
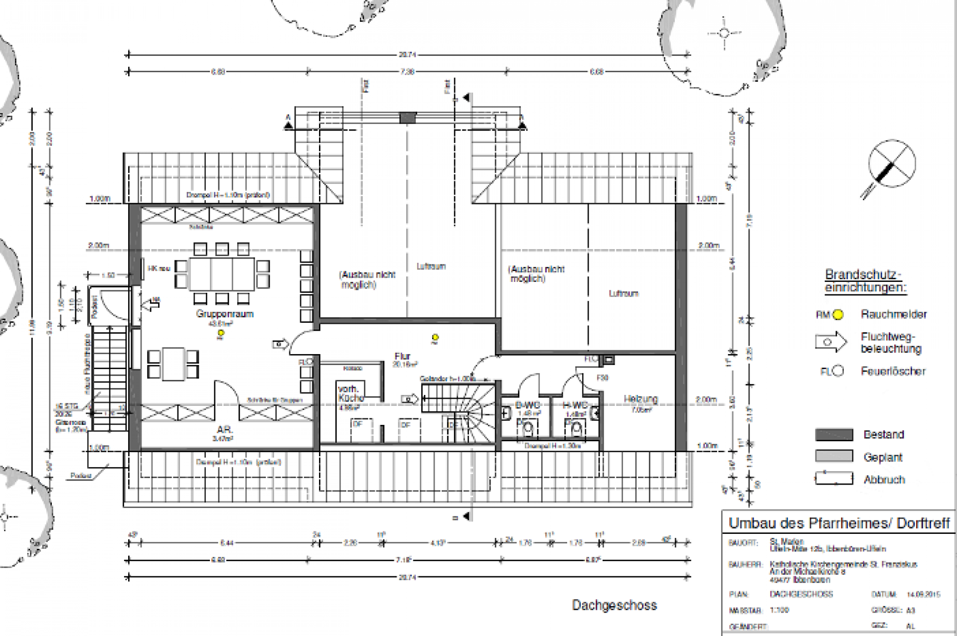
In weiteren Gesprächen zwischen Pfarrgemeinde und IVU wurde im August 2015 noch die Frage nach behindertengerechteren Toiletten erörtert. Man war sich einig, dass eine solche Ausstattung die Nutzung des Dorf-Service-Centers gerade für ältere Menschen erleichtern würde. Dadurch würden zwar die Gesamtkosten steigen, doch die verbesserten Nutzungsmöglichkeiten dürften dies rechtfertigen. Der nachfolgend abgebildete Plan zeigt den neuen Entwurf des Architekturbüros Krause.

Bis Oktober 2015 hatten die Pfarrgemeinde und der IVU die abschließenden Gespräche zur Einrichtung des Dorf-Service-Centers im Pfarrheim geführt. Die Parteien konnten sich über alle Modalitäten einigen. So stand der Realisierung aus Uffelner Sicht nichts mehr entgegen. Was fehlte, war “lediglich“ noch die Genehmigung des Förderantrages. Dieser konnte allerdings erst nach Veröffentlichung der Förderrichtlinien des Landes gestellt werden. Und das dauerte bis zum Mai 2016.
Der Rund-Erlass des Ministeriums für Klimaschutz, Umwelt, Landwirtschaft, Natur- und Verbraucherschutz des Landes NRW legte auf 14 Seiten in schwer verständlichem Behördendeutsch die Einzelheiten für eine Förderung fest. Es wurden hohe Anforderungen gestellt. Verlangt bzw. festgelegt wurden z. B. Wirtschaftlichkeitsnachweise, Personalauswahlverfahren nach festgelegten Regeln mit Nachweis, aufwendige Nachweise und eingeschränkte Anerkennung von Eigenleistungen sowie Baubeginn spätestens 6 Monate nach Förderzusage. Aber das Wichtigste, die Förderung erfolgte unter Widerrufsvorbehalt. Würden Bauten oder bauliche Anlagen nicht mindestens 12 Jahre ab Fertigstellung dem Förderungszweck entsprechend verwandt, so wäre die Fördersumme zurückzuzahlen. All dies stimmte die Verantwortlichen des IVU jetzt doch sehr nachdenklich. Die Bestimmungen erhöhten den Aufwand erheblich und steigerten das Risiko.
In seiner Sitzung vom 12.7.2016 beschloss der Vorstand des IVU, den Förderantrag zu stellen. Der Kirchenvorstand hatte sich zustimmend geäußert und war bereit, als Kooperationspartner zur Verfügung zu stehen. Ausschlaggebend waren die deutliche Verbesserung der Infrastruktur in Uffeln und der sichere Erhalt des Pfarrheims durch das Projekt. Für Uffeln aus Sicht des IVU ganz wichtige Voraussetzungen für eine positive Dorfentwicklung.
Nach einer Überarbeitung der Projektskizze wurde das Projekt in Abstimmung mit dem Kirchenvorstand sogar noch umfangreicher. Es sollte jetzt nicht nur ein Teil des Erdgeschosses des Pfarrheims samt Toilettenanlage in das Projekt einbezogen werden, sondern auch das Dachgeschoss. Der im Obergeschoss vorhandene große Raum sollte als Gruppenraum ausgebaut werden. Dazu war insbesondere der Einbau eines zweiten Fluchtweges (Außentreppe) erforderlich. Das erhöhte natürlich die Kosten deutlich.

Das Projekt erreichte damit für Uffelner Verhältnisse schon erhebliche finanzielle Dimensionen. Die Gesamtkosten beliefen sich auf knapp 295.000 €. Als Fördersumme beantragte der IVU ca. 194.000 €. Gut 100.000 € muss der IVU selbst erbringen.
Nachdem weitere Sponsoren und Kooperationspartner gefunden wurden und die Uffelner im Rahmen der Bürgerbefragung regelmäßige jährliche Spenden versprochen hatten, erschien das Risiko dem IVU aber vertretbar, obwohl der Betrieb des Dorf-Service-Centers bis 2030 gesichert werden musste. Ansonsten wäre der Förderbetrag zurück zu zahlen.
Da das Antragsformular für den Förderantrag noch fehlte, wurde dem Regionalmanagement der LAG Tecklenburger Land noch im Juli 2017 der ergänzte Projektvorschlag (hier zum Download Projektvorschlag), der auch Grundlage eines Förderantrages sein würde, zur Prüfung vorgelegt. In der Dezember-Sitzung der LAG Tecklenburger Land sollte der IVU sein Projekt persönlich vorstellen, so war es in Aussicht gestellt. Im Falle einer positiven Entscheidung, wovon auszugehen war, wäre mit einer Genehmigung des Förderantrages durch die Bezirksregierung im 2. Quartal 2017 zu rechnen gewesen.
In den Folgemonaten wurde es immer ruhiger um unser Projekt. Im Dezember 2016 gab es die ersten Hinweise auf Schwierigkeiten mit der Förderfähigkeit. Ein gründliches Studium der Förderrichtlinien durch die zuständigen Behörden hatte Zweifel aufkommen lassen. Im Januar 2017 kam es auf Drängen des IVU zu einer Gesprächsrunde unter Beteiligung des Kreises Steinfurt und der Bezirksregierung Münster.
Das Ergebnis war niederschmetternd.
Entgegen allen vorangegangenen Aussagen war das Projekt „Dorf-Service-Center“ plötzlich teilweise nicht mehr förderfähig. Die Verantwortlichen hatten entdeckt, dass eine Regelung in den Förderrichtlinien „LEADER“ der Förderung der Umbaumaßnahmen im Pfarrheim entgegenstand.
Baumaßnahmen waren danach nur nach „LEADER“ förderfähig, wenn kein anderes Förderprogramm solche Maßnahmen fördert. Dass es schon seit 2014 ein Förderprogramm des Landes NRW zur „Integrierten ländlichen Entwicklung“ (ILE) gab, das solche Baumaßnahmen förderte, hatten die Verantwortlichen leider übersehen.
Nach ILE können nur Kommunen die Förderung beantragen. Sie müssen auch die Maßnahmen durchführen und dazu noch 10% Eigenanteil leisten. Das kam für die Stadt Ibbenbüren nicht in Frage. Hinzu kommt, dass die Förderung nach ILE nur vom Nettobetrag (ohne MWSt) erfolgt und die Sätze niedriger sind.
Im Ergebnis kam die ILE-Förderung somit für den IVU nicht in Betracht und eine LEADER-Förderung war wegen ILE nicht möglich.
Damit war das Projekt Dorf-Service-Center für den Interessen-Verein nicht finanzierbar, denn die Umbaukosten waren ein wesentlicher Posten in unserem Projekt.
Der Ärger war groß. Die Arbeit von 2,5 Jahren war für die Katz?! So kann man die Lust am Ehrenamt wirklich verlieren.
Was war zu tun? Aufgeben, oder mit einem abgespeckten Konzept in eigener Verantwortung ohne Förderung weitermachen?